您的位置:
首页
>
信息公告
>
规划许可(批前公示、批后公告)
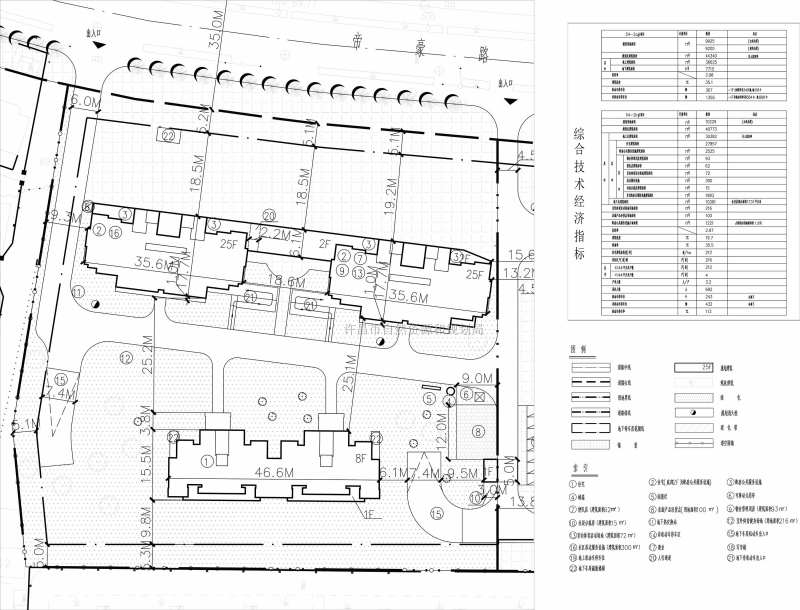
红星广场(住宅)变更建设工程规划许可批前公示
【信息来源:
】
【信息时间:2025-12-30 阅读次数:
】【字号
大
中
小
】【
我要打印
】【
关闭
】
红星广场(住宅)变更建设工程规划许可批前公示.zip