依据《中华人民共和国城乡规划法》、《行政许可法》、《关于城乡规划公开公示的规定》等有关法律法规,特此公告,公告日期2026年01月26日-2026年02月25日,如有意见或建议,请在公示期内向我局以书面形式提出,相关利害关系人认为影响其合法权益,需要进行听证的,请在公示期内申请听证,逾期不提出意见或者申请听证,我局依法办理规划审批手续。
咨询电话:8582020
2987060
经办科室:建设项目管理科
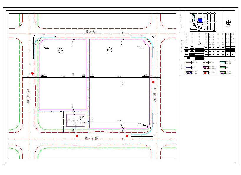
经开区80号地块位于工农路以东,昌和路以南,丰园路以西,瑞昌路以北。规划红线内总用地面积110464平方米(165.7亩),规划绿线内总用地面积105811平方米(158.7亩),其中80-2a号地块规划红线内用地面积41251平方米(61.9亩),规划绿线内用地面积39136平方米(58.7亩),80-2b号地块规划红线内用地面积63621平方米(95.4亩),规划绿线内用地面积61877平方米(92.8亩),(一类)工业用地;80-3号地块规划红线内用地面积5592平方米(8.4亩),规划绿线内用地面积4798平方米(7.2亩),公交场站用地,经开区89号地块位于工农路以东,瑞昌路以南,丰园路以西,丰泽路以北。规划红线内总用地面积126888平方米(190.3亩),规划绿线内总用地面积120791平方米(181.2亩),其中89-1号地块规划红线内用地面积57719平方米(86.5亩),规划绿线内用地面积53360平方米(80.0亩),89-2号地块规划红线内用地面积69169平方米(103.8亩),规划绿线内用地面积67431平方米(101.2亩),(一类)工业用地。

