依据《中华人民共和国城乡规划法》、《中华人民共和国行政许可法》、《关于城乡规划公开公示的规定》等有关法律法规,特此公告,公告日期2026年02月13日-2026年03月14日,如有意见或建议,请在公示期内向我局以书面形式提出,相关利害关系人认为影响其合法权益,需要进行听证的,请在公示期内申请听证,逾期不提出意见或者申请听证,我局依法办理规划审批手续。
咨询电话:8582020
2987060
经办科室:建设项目管理科
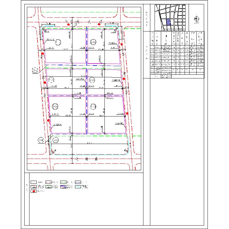
阳光大道以南、屯田路以北、杏林路以西、开泰路以东围合地块位于阳光大道以南,屯田路以北,杏林路以西,开泰路以东。规划红线内总用地面积288687平方米(433.0亩),规划绿线内总用地面积284693平方米(427.0亩),其中,2-1a号地块规划红线内用地面积49270平方米(73.9亩),规划绿线内用地面积46916平方米(70.4亩);2-1b号地块规划红线内用地面积37905平方米(56.9亩),规划绿线内用地面积36265平方米(54.4亩);2-2a号地块规划红线内用地面积33234平方米(49.9亩);2-2b号地块规划红线内用地面积28759平方米(43.1亩);2-2c号地块规划红线内用地面积43053平方米(64.6亩);2-2d号地块规划红线内用地面积43863平方米(65.8亩),工业用地(二类),容积率≥1.0。2-3号地块规划红线内用地面积6865平方米(10.3亩);2-5号地块规划红线内用地面积41488平方米(62.2亩),防护绿地。2-4号地块规划红线内用地面积4250平方米(6.4亩),城镇村道路用地。
